construction en auto-construction / Poteaux – poutres toiture en zinc
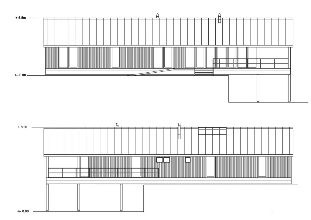
La maison est un volume unique, simple, un parallélépipède rectangle surmonté d’une toiture à 2 pentes.
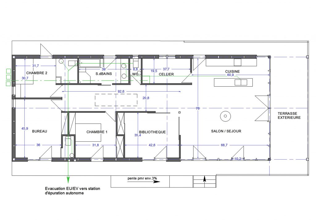
Le plan du rez-de-chaussé, plateau surélevé de 70 cm par rapport au terrain naturel, est une surface plane déroulant les espaces à vivre.
L’architecture adopte un système rythmé d’ossatures et de poteaux / poutres bois puis de fermes. L’ensemble se veut sobre et largement ouvert sur l’environnement.
Les parois sud et est, protégées par un débord de toiture et des stores vénitiens intérieurs, permettent à l’habitant de conserver un contact avec le paysage direct tout en assurant les procédés bioclimatiques (protection solaires et solaire passif)
